Charmante Doppelhaushälfte mit Garten in familienfreundlicher Lage (Typ A)
Weingartzhof in 53909 Zülpich
Objektbeschreibung
Neubau-Doppelhaushälfte mit Garten – modern, energieeffizient und familienfreundlich
Hier entsteht Ihr neues Zuhause: Eine hochwertige Doppelhaushälfte mit Satteldach, moderner Ausstattung und privatem Garten. Die Fertigstellung erfolgt im Jahr 2025, Einzug ist ab 01/2026 möglich.
Zur Auswahl stehen zwei Varianten:
- Typ A: ca. 116 m² Wohn-/Nutzfläche, Kaufpreis excl. Garage: 394.000 €
- Typ B: ca. 148 m² Wohn-/Nutzfläche, Kaufpreis excl. Garage: 444.000 €
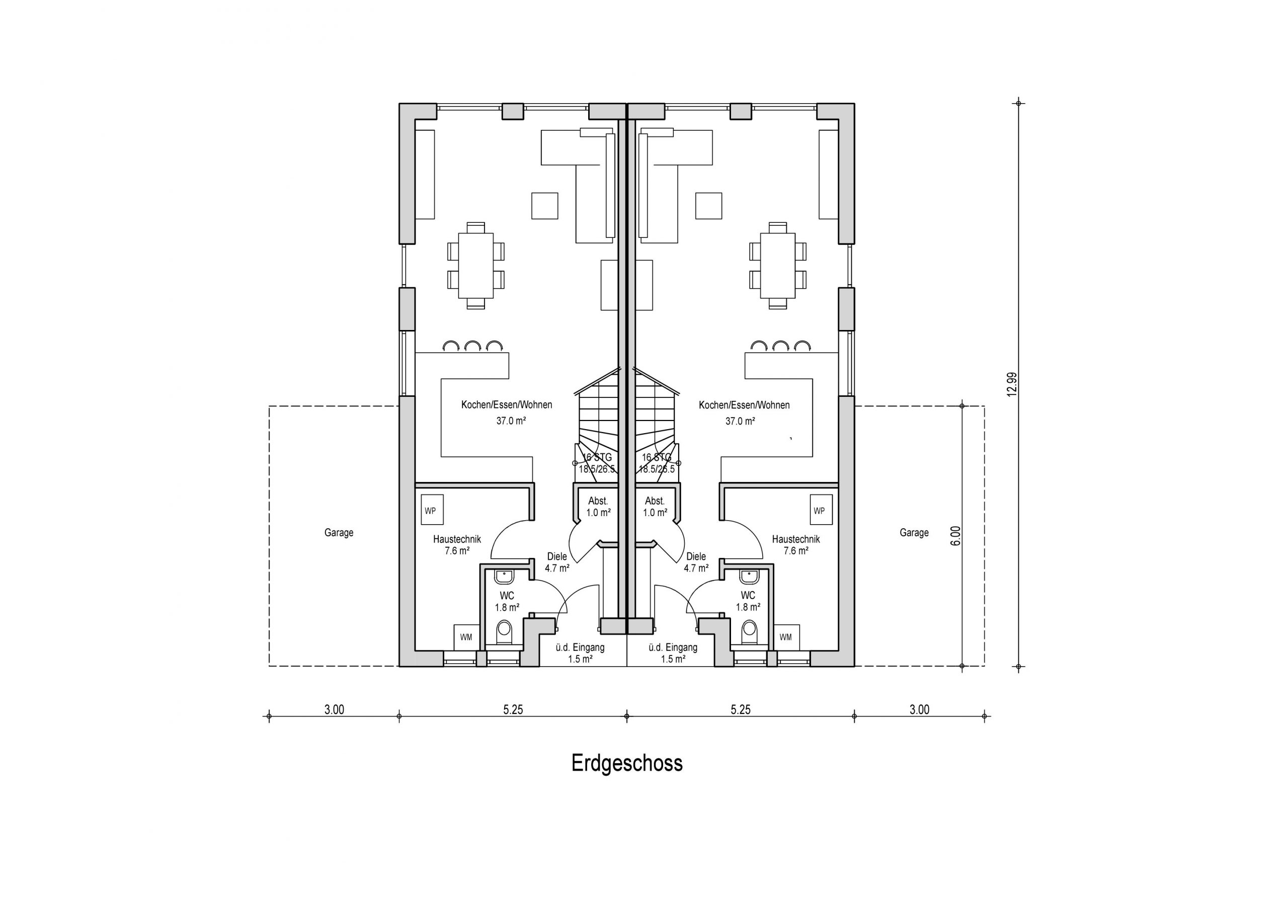
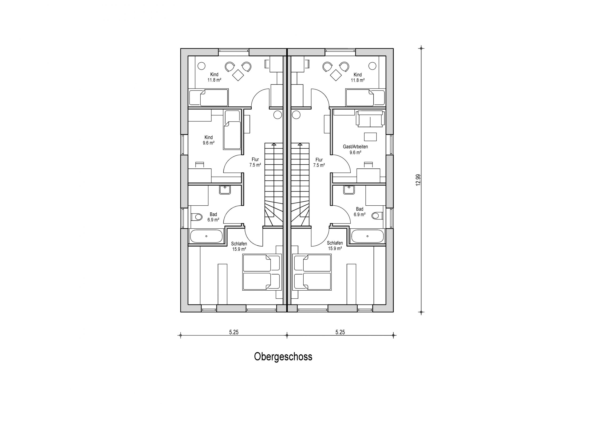
Die Grundstücksgröße beträgt ca. 231 m². Auf zwei Wohnetagen plus Dachgeschoss finden Sie 4 Zimmer, darunter 3 Schlafzimmer sowie 2 moderne Badezimmer – ideal für Familien oder Paare mit Platzbedarf.
Ausstattung & Highlights
- Luft-Wasser-Wärmepumpe mit Photovoltaikanlage
- Elektrische Jalousien an allen Fenstern für optimalen Sonnenschutz und Komfort, Lamellen sind kippbar
- Fußbodenheizung auf allen Etagen für optimale Wärme
- Hochwertige Haustür und dreifach verglaste Fenster für zusätzliche Sicherheit und Energieeffizienz
- Hochwertige keramische Fließen, robust und pflegeleicht
Lage und Umgebung
Das Haus in Zülpich -Sinzenich liegt in einer besonders familienfreundlichen und ruhigen Wohnlage, eingebettet in eine grüne Umgebung mit dörflichem Charme. Die Nachbarschaft ist geprägt von gewachsenen Strukturen, viel Natur und einer starken Gemeinschaft – ideal für Familien, die sich nach einem sicheren, harmonischen Zuhause sehnen.
Schulen, Kindergärten und Einkaufsmöglichkeiten befinden sich in unmittelbarer Nähe, ebenso wie Ärzte, Sportvereine und Freizeitangebote. Die gute Anbindung an Zülpich und Euskirchen sowie die Nähe zur B265 machen den Standort auch für Berufspendler attraktiv.
Ob Spaziergänge im Grünen, Fahrradtouren durchs Umland oder entspannte Nachmittage im eigenen Garten – hier genießen Sie Lebensqualität pur. Eine Umgebung, in der Kinder unbeschwert aufwachsen können und sich auch Erwachsene schnell zuhause fühlen.
Willkommen in Sinzenich – wo Wohnen mehr als nur ein Ort ist, sondern ein echtes Zuhause bedeutet..
Fakten
Typ
Doppelhaushälfte
Baujahr
2026
Etage
Wohnfläche
ca. 116 m²
Zimmer
Badezimmer
2
Garage
1
Kaufpreis Garage
15.000 €
Gewährleistungsfrist
5 Jahre
Ausstattung
gehoben
Autobahnen
A1
Verfügbarkeit
05/2026
Preis
394.000 €
Käuferprovision
3,75% excl. MwSt. für den Käufer
Sie sehen gerade einen Platzhalterinhalt von Google Maps. Um auf den eigentlichen Inhalt zuzugreifen, klicken Sie auf die Schaltfläche unten. Bitte beachten Sie, dass dabei Daten an Drittanbieter weitergegeben werden.
Mehr InformationenJetzt individuelle Anfrage stellen
Ihr Ansprechpartner
- info@lenz-rec.de
- 0221 56962976
-
Montag – Freitag
von 10:00 bis 18:00 Uhr
Samstags
von 10:00 bis 14:00 Uhr
394.000 €
Preis
ca. 116 m²
Wohnfläche
4
Zimmer
















